БЦ Європа Плаза

Загальна інформація

  • Категорія: Клас В+
  • Адреса: бул. Шевченка 33 Б, м. Київ, Україна
  • Паркінг:  52 машиномісця
  • Відстань до метро: 7 хв. пішки (650 м)
  • Відстань до вул. Хрещатик: 1,7 км
  • +38 (044) 507 14 00
Дізнатися більше
БЦ Європа Плаза -1 поверх

 

  • Площа приміщення – 17,5 кв.м.
  • Місце розташування -1 (мінус перший) поверх
  • Коефіцієнт площ загального користування – 1,17
  • Розрахункова площа – 17,5*1,17=20,48 кв.м.
  • Орендна ставка – 6$ + ПДВ
  • Експлуатаційні витрати – 5$ + ПДВ
  • Комунальні витрати – згідно лічильників + пропорційна оплата частки за площу загального користування

На період дії військового стану надається знижка на оплату орендної плати.

План Орендувати
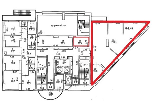
БЦ Європа Плаза 3 поверх

 

  • Площа приміщення – 19,3 кв.м.
  • Місце розташування - 3 поверх
  • Коефіцієнт площ загального користування – 1,17
  • Розрахункова площа – 19,3*1,17=22,58 кв.м.
  • Орендна ставка – 6$ + ПДВ
  • Експлуатаційні витрати – 5$ + ПДВ
  • Комунальні витрати – згідно лічильників + пропорційна оплата частки за площу загального користування

На період дії військового стану надається знижка на оплату орендної плати.

План Орендувати
БЦ Європа Плаза 3 поверх

 

  • Площа приміщення – 127,4кв.м.
  • Місце розташування - 3 поверх
  • Коефіцієнт площ загального користування – 1,17
  • Розрахункова площа – 127,4*1,17=149,06 кв.м.
  • Орендна ставка – 6$ + ПДВ
  • Експлуатаційні витрати – 5$ + ПДВ
  • Комунальні витрати – згідно лічильників + пропорційна оплата частки за площу загального користування

На період дії військового стану надається знижка на оплату орендної плати.

План Орендувати
БЦ Європа Плаза 3 поверх

 

  • Площа приміщення – 71,9 кв.м.
  • Місце розташування - 3 поверх
  • Коефіцієнт площ загального користування – 1,17
  • Розрахункова площа – 71,9*1,17=84,12 кв.м.
  • Орендна ставка – 6$ + ПДВ
  • Експлуатаційні витрати – 5$ + ПДВ
  • Комунальні витрати – згідно лічильників + пропорційна оплата частки за площу загального користування

На період дії військового стану надається знижка на оплату орендної плати.

План Орендувати
Інші питання
Заявка на оренду
Площа *
Поля, позначені * - обов'язкові для заповнення
Напишіть нам
Повідомлення *
Поля, позначені * - обов'язкові для заповнення